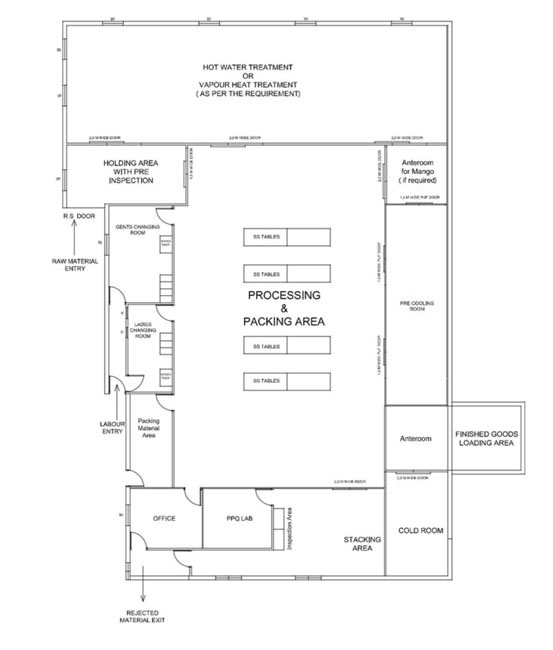
Pack House for fruits and vegetables
The objective of pack house is to encourage exporters of horticultural produce to meet the international standards in terms of quality of produce with quarantine safety.
The pack house is built as per the requirement for material handling, holding, pre-inspection, shorting, grading, washing, standard treatment, packaging, stacking, pre-cooling, cold storage, quarantine check etc.,
Pack house is applicable for handling and processing for all horticulture produce viz fresh fruits, vegetables etc. for export.